English
简体中文
Pусский
:
全部
产品名称
关键词
产品型号
产品摘要
产品描述
全文搜索
首页
产品
塔式起重机
塔式起重机配件
升降机
升降机配件
关于我们
新闻
案例
联系我们
简体中文
Pусский
English
首页
产品
塔式起重机
塔式起重机配件
升降机
升降机配件
关于我们
新闻
案例
联系我们
:
搜索
全部
产品名称
关键词
产品型号
产品摘要
产品描述
全文搜索
产品
塔式起重机
变幅起重机
裸照塔式起重机
Topkit 塔式起重机
二手塔起重机
井架起重机
塔式起重机备件
标准节
地脚
附着框架
顶升套架
行走底架
基础节
转换节
吊钩
塔吊臂
变幅小车
起升机构
回转机构
变幅机构
行走机构
电器件
其他部分
工作平台
乘客提升机
乘客提升机零件
其他的
此产品已下架!
loading
分享到:
R70/15B中国制造的裸照塔起重机
状态:
型号:
R70/15B
产品品牌:
SYM
产品编码:
8426200000
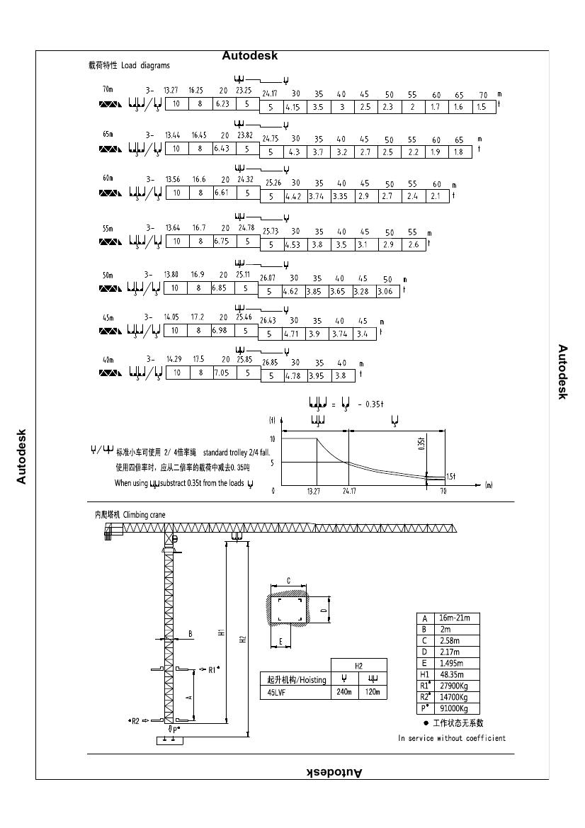
产品描述
上一条:
下一条:
快速链接
首页
消息
产品
关于我们
联系我们
联系我们
地址 :
沈阳
市浑南新区三义街瑞宝东方大厦
电话:0086-24-84317130
网址:
www.symtowercrane.com.
电子邮件 :
enquiry@symtowercrane.com
你的建议
提交
版权所有2019.
SYM提升塔起重机设备有限公司
所有权利